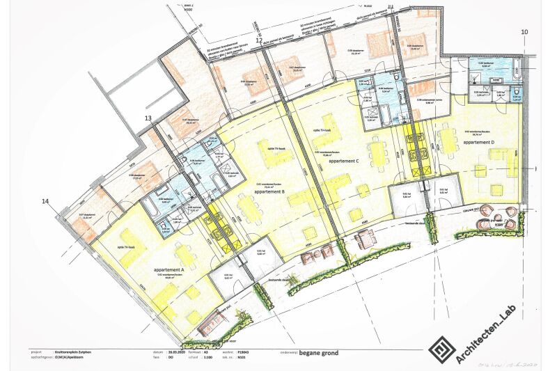
Dicht bij de binnenstad en het station, op een historische locatie, zijn vier ruime koopappartementen gerealiseerd in de commerciële plint van het appartementencomplex aan het Kruittorenplein. De hoge plafonds op de begane grond geven deze woningen extra uitstraling. Aan de pleinzijde is over de volle breedte van de appartementen een groene buitenruimte aangelegd. De verkoop van de appartementen is binnen korte tijd afgerond door makelaar Eggink Maalderink.
Kruittorenhoek, Zutphen
Transformatie naar wonen
Factsheet
| Project: | Kruittorenhoek |
| Plaats: | Zutphen |
| Status: | Verkocht |
| Jaar van realisatie: | 2021 |
| Opdrachtgever: | Nijhuis Bouw |
| Locatieontwikkeling: | OMA-Apeldoorn |
| Opstalontwikkeling: | OMA-Apeldoorn |
| Bouw: | Nijhuis Bouw |
| Stedenbouw: | - |
| Architectuur: | Architecten_Lab |
| Landschap: | - |
| Programma: | 4 Appartementen |
| Voetnoten: |
- |






